Používáme cookies k optimalizaci našich webových stránek a našich služeb. Další informace o cookies najdete zde.

Nastavení


Prodej bytu Osadní, Holešovice

Prodej bytu Osadní, Holešovice

 

 

 

 

 

 

 

 

 

 

 

Exkluzivně nabízíme k prodeji velmi hezký byt 1+1 v ulici Osadní, Praha 7 Holešovice.

Popis nemovitosti

 

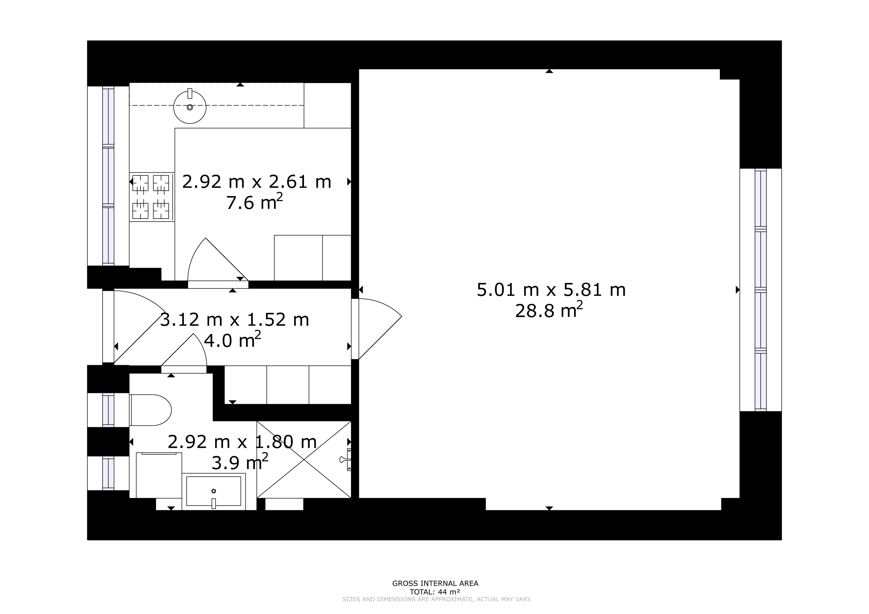
Nabízíme k prodeji elegantní a útulný byt o dispozici 1+1 a celkové výměře 49,60 m², situovaný v jedné z nejvyhledávanějších a dynamicky se rozvíjejících částí Prahy – Holešovice.

Byt se nachází ve 2.nadzemním podlaží udržovaného činžovního domu v ulici Osadní a představuje ideální kombinaci městského života, klidného zázemí i investičního potenciálu.

Dispozice bytu je prakticky řešena s důrazem na maximální využití prostoru. Nabízí vstupní předsíň s úložným prostorem, koupelnu se sprchovým koutem, WC a místem pro pračku, samostatnou kuchyni s dostatkem prostoru pro vaření a světlý obytný pokoj.

Obývací pokoj je vybaven vestavným nábytkem na míru, který zahrnuje komfortní dvoulůžko s úložnými prostory, prostorné vestavné skříně a psací stůl vhodný pro práci i studium. Díky tomuto řešení působí interiér velmi čistě, vzdušně a funkčně.

K bytu náleží sklepní kóje o velikosti 5 m², která poskytuje další praktický úložný prostor.

Byt prošel rekonstrukcí přibližně před 10 lety (koupelna, kuchyň, rozvody, podlahy) a je ve velmi dobrém, udržovaném stavu. Vytápění obytného pokoje je řešeno plynovým topidlem WAW, v koupelně a kuchyni je komfortní podlahové vytápění.

Dům je ve velmi dobrém technickém stavu – má plastová okna, nové stoupačky i střechu a udržované společné prostory. V plánu je další zhodnocení domu (nové ploty a výmalba společných prostor), přičemž ve fondu oprav je dostatek finančních prostředků. PENB D.

Holešovice dlouhodobě patří mezi nejžádanější lokality v Praze díky kombinaci moderního městského života, kultury, gastronomie i blízkosti zeleně. V okolí naleznete kompletní občanskou vybavenost, kavárny, restaurace i galerie.

Měsíční náklady činí 3 876 Kč (voda, úklid a osvětlení společných prostor, výtah, odpad, fond oprav, pojištění apod.), energie (elektřina a plyn) přibližně 2 000 Kč měsíčně.

Byt je aktuálně pronajatý na dobu určitou, což z něj činí ideální investiční příležitost s okamžitým výnosem.

Pro bližší informace kontaktujte makléře.


Videoprohlídka

3D scan

Lokalita - občanská vybavenost a dopravní dostupnost

Byt se nachází v atraktivní a velmi vyhledávané lokalitě Praha 7 – Holešovice, konkrétně v ulici Osadní, která v posledních letech prošla výraznou proměnou a dnes patří mezi moderní a dynamicky se rozvíjející části města. Tato čtvrť kombinuje industriální charakter s bohatým kulturním a společenským životem, díky čemuž je oblíbená jak pro vlastní bydlení, tak i jako investice.

Velkou předností je výborná dopravní dostupnost. V docházkové vzdálenosti se nachází tramvajová zasávka Ortenovo náměstí  ze které jste na stanici metra C Nádraží Holešovice nebo stanice Vltavská do 5ti minut. Přímo v ulici je také autobusová zastávka Osadní. Díky tomu je centrum města dostupné během několika minut a lokalita je velmi dobře propojená i s dalšími částmi Prahy.

Občanská vybavenost je zde na velmi vysoké úrovni. V okolí se nachází široká nabídka obchodů, supermarketů, restaurací, kaváren i menších lokálních podniků. Nechybí školy, školky, lékárny ani další služby pro každodenní život. Oblíbeným místem je také Holešovická tržnice, kde se konají farmářské trhy a různé kulturní akce.

Lokalita nabízí i skvělé možnosti pro odpočinek a sport. Nedaleko se nachází rozlehlý park Stromovka, ideální pro procházky, běh nebo cyklistiku. Podél Vltavy vede cyklostezka a upravené nábřeží vhodné pro relax i aktivní trávení volného času.

Holešovice jsou zároveň významným kulturním centrem. V blízkosti se nachází DOX – Centrum současného umění nebo divadelní scéna La Fabrika. Lokalita tak nabízí široké možnosti kulturního i společenského vyžití.

Díky kombinaci skvělé dopravní dostupnosti, kompletní občanské vybavenosti, množství zeleně a bohatého kulturního života patří Holešovice mezi nejžádanější lokality v Praze a představují ideální místo pro moderní městské bydlení.

Cena

7.950.000,- Kč včetně provize RK a právního servisu

Kontakt

Richard Pomietlo

tel. 737 557 885

richard@abareal.cz

ABA REAL s.r.o. - realitní kancelář

„Musíte být schopni dělat dnes věci, které ostatní nedělají. Abyste zítra měli věci, které ostatní nikdy mít nebudou.“ 

Les Brown, spisovatel

 


ABA REAL s.r.o. - realitní kancelář

Kontaktní formulář

Stáhnout PDF